Découvrez aussi
nos annonces similaires
40560 Vielle-Saint-Girons
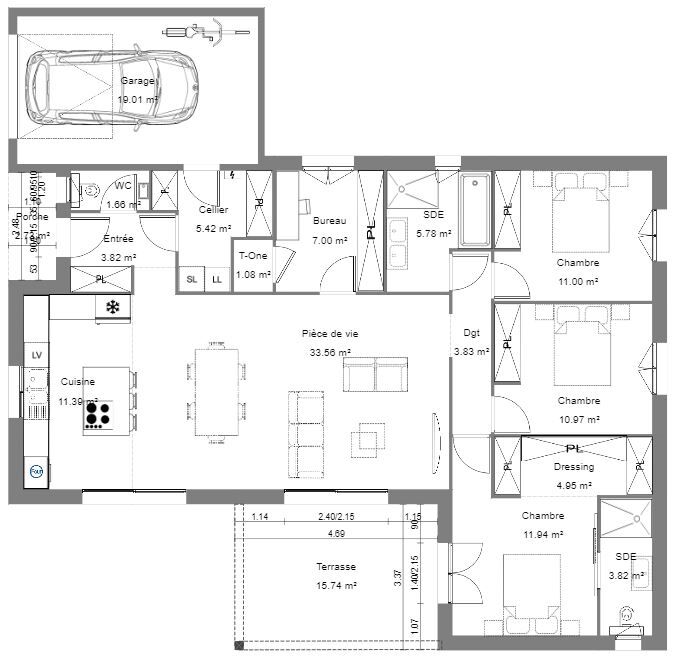
Sur la commune de Vielle-Saint-Girons, à quelques kilomètres de l’océan et de ses belles plages, à deux pas des commerces et services, Maison d’en France Sud-Ouest vous propose de construire cette maison neuve sur le terrain de 624 m² que nous vous y avons déniché. Cette belle maison en L de près de 116² habitables propose, côté jour, une pièce de vie de près de 45 m² qui seront ajustables à vos envies. Cuisine moderne, salon séjour ouvert sur une terrasse couverte qui prolongera votre espace de vie de plus de 15 m². Accès direct au cellier et au garage. Le côté nuit se compose de deux chambres avec placards intégrés et d’une salle de bains avec douche, baignoire et vasque, et d’une suite parentale et sa salle d’eau privative. Idéal pour accueillir une famille de deux, voire trois enfants. Doté d’un réglage pièce par pièce, le système de chauffage suggéré vous assurera le plus grand confort dans le respect des nouvelles normes environnementales, tout en vous assurant de très substantielles économies, tant en chauffage qu’en rafraichissement. Maison prête à décorer, ne vous resterons que les peintures et la cuisine. Votre talent fera le reste ! Plan, disposition, système de chauffage, tout reste entièrement personnalisable selon vos envies. Terrain viabilisé de 624 m², selon disponibilité de notre partenaire foncier. Non mandaté pour la vente du terrain. Maison + terrain + frais de notaire + terrassement + raccordements à partir de 335 000 euros. Dommages-ouvrage et garanties de parfait achèvement et de livraison à prix et délais convenus incluses. Pour plus de renseignements, n’hésitez pas à joindre Katherine, votre conseillère Maisons d’en France Sud-Ouest. Référence : KF-VSG-898.

Ns avons fait appel à MDF pr une construction à la location. Nos interlocuteurs, Stéphanie conseillère habitat a su s’adapter à nos exigences, et Julien, conducteur de travaux à été d’une efficacité redoutable pr ns livrer une maison en 8 mois. Ns recommandons vivement l’agence de Mt de Marsan pr vos futur projets.
Yves O. 06/02/2026