Portes ouvertes à Vielle St Girons les 24-25-26 avril ! Plus d’infos en bas de page dans Nos Rendez-vous

Maison neuve 92m², 3 chambres

Maison neuve 92m², 3 chambres

40560 Vielle-Saint-Girons

Maison neuve 92m², 3 chambres

  • img3639.png
  • img3640.png
  • img3641.png
  • img3642.png
  • img3643.png
  • img3644.png
Partager

Surface

92 m²

Surface du terrain

501 m²

Chambres

3

Référence

KF-VSG-509
à partir de 282.500€
Alerte mail
Sur la commune de Vielle-Saint-Girons, à 5km de l’océan et...
Voir moins

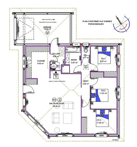
Sur la commune de Vielle-Saint-Girons, à 5km de l’océan et de ses belles plages, à deux pas de l’étang de Léon, des commerces et services, Maison d’en France CASTETS vous propose de construire cette maison neuve de 80 m² habitables sur le terrain de 501 m² que nous vous y avons déniché. Laissez-vous séduire par cette maison hyper optimisée de 92 m² habitables, répondant aux normes de la RE 2020. Confortable, fonctionnelle et lumineuse, cette future construction est composée d’une belle pièce de vie de 46 m² baignée de lumière grâce à ses larges baies vitrées, dont une en pan coupé. La cuisine semi ouverte permet un accès direct au cellier et au garage de près de 20 m². Un véritable de gage de fonctionnalité ! Côté nuit : trois chambres avec placards intégrés recevront aisément un couple et deux enfants. WC séparé, salle de bains équipée d’une double vasque, d’une baignoire et d’une spacieuse douche. Maison de vacances, investissement locatif ou résidence principale, ce nid douillet répondra à toutes vos attentes. Le système de chauffage suggéré vous assurera le plus grand confort dans le respect des nouvelles normes environnementales, tout en vous assurant de très substantielles économies, tant en chauffage qu’en rafraîchissement. Pas de plan type chez Maisons d’en France Sud-Ouest, tout est modifiable selon vos envies, votre budget, vos besoins. Ce projet vous est proposé « tout compris » hors peintures et cuisine. Terrain viabilisé de 501 m², selon disponibilité de notre partenaire foncier. Non mandaté pour la vente du terrain. Maison + terrain + frais de notaire + terrassement + raccordements à partir de 282 500 euros. Dommages-ouvrage et garanties de parfait achèvement et de livraison à prix et délais convenus incluses. Pour plus de renseignements, n’hésitez pas à joindre Katherine, votre conseillère Maisons d’en France Sud-Ouest, agence de CASTETS. Référence : KF-VSG-509.

Avis Client


90
Maison 2 chambres 75m2

Ns avons fait appel à MDF pr une construction à la location. Nos interlocuteurs, Stéphanie conseillère habitat a su s’adapter à nos exigences, et Julien, conducteur de travaux à été d’une efficacité redoutable pr ns livrer une maison en 8 mois. Ns recommandons vivement l’agence de Mt de Marsan pr vos futur projets.

Yves O. 06/02/2026


Plus d'avis

Découvrez aussi
nos annonces similaires

Terrain + maison
Terrain + maison

Terrain + maison

1Icon3_ok
600 m²
1Icon2_ok
86 m²
1Asset 2
3

À partir de 198.000€

Voir l'annonce
Terrain + maison
Terrain + maison

Terrain + maison

1Icon3_ok
1006 m²
1Icon2_ok
100 m²
1Asset 2
3

À partir de 368.000€

Voir l'annonce
Terrain + maison
Terrain + maison

Terrain + maison

1Icon3_ok
612 m²
1Icon2_ok
85 m²
1Asset 2
3

À partir de 307.000€

Voir l'annonce
Toutes les annonces

Besoin d'être accompagné?
Nous répondons à tous vos projets et vos envies !