Découvrez aussi
nos annonces similaires
40170 Mézos
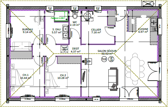
Dans cet environnement au calme et retiré sur une parcelle de 964 m², nous vous proposons ce projet d’un peu plus de 88 m² avec son salon / séjour / cuisine de presque 40 m². Le coin salon et salle à manger serait bercé de lumière avec ses 2 portes fenêtres bénéficiant d’une double exposition qui pourraient donner sur une terrasse à aménager ultérieurement. Un cellier dépassant les 7 m² se situerait proche de l’entrée ainsi que de la cuisine afin de vous offrir un espace de rangement intéressant. Côté nuit, 3 chambres ont été prévues avec une salle d’eau commune comprenant une double vasque ainsi qu’une douche à l’italienne. Le système de chauffage vous est proposé avec un système de chauffage comprenant une climatisation réversible type T. ONE, permettant d’ajuster les températures sur chacune des pièces de la maison. Carrelage et parquet dans les chambres inclus, centralisation électrique pour l’ensemble des volets roulants. La construction de votre maison respectera la RE 2020 ce qui lui permettra de bénéficier entre autre, d’une domotique dernier cri ainsi que d’une faible consommation d’énergie. À noter qu’il vous sera possible d’ajouter par exemple un garage / pièce (s) complémentaire (s) ou d’adapter les plans à vos envies (prix à adapter en fonction). Le prix comprend : – Terrain + maison – garantie d’achèvement et de livraison à prix et délais convenus incluse – DO incluse – Frais de notaire inclus – raccordements inclus – Taxes PFAC et aménagement incluses – visuel non contractuel – Non mandaté pour réaliser la vente du terrain – Selon disponibilité de notre partenaire foncier – Les informations sur les risques auxquels ce bien est exposé sont disponibles dur le site Géorisques https://www.georisques.gouv.fr / Il restera à votre charge les touches finales, à savoir les peintures, la cuisine, les clôtures et le portail. Pour toute information complémentaire, n’hésitez pas à contacter Ludwig MOLL, Conseiller habitat Maisons d’en France. Référence annonce : LM04-MEZOS.

Ns avons fait appel à MDF pr une construction à la location. Nos interlocuteurs, Stéphanie conseillère habitat a su s’adapter à nos exigences, et Julien, conducteur de travaux à été d’une efficacité redoutable pr ns livrer une maison en 8 mois. Ns recommandons vivement l’agence de Mt de Marsan pr vos futur projets.
Yves O. 06/02/2026