Découvrez aussi
nos annonces similaires
40260 Castets
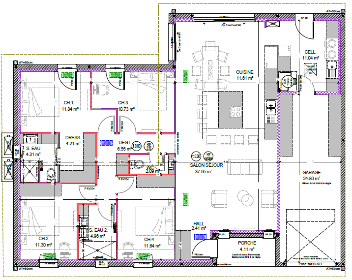
Maisons d’en France vous propose aujourd’hui un projet de construction à Castets, ville située à moins de 20 km des plages, et 30 minutes de Bayonne par l’autoroute ! La ville de Castets est pourvue de commerces et centres médicaux et culturels (grande surface, boulangeries délicieuses, centre médicalisé, cinéma, école. ). À noter, outre les prestations détaillées ci dessous, le projet comprend la dommage ouvrage, le cout des frais de notaire estimés ainsi qu’une une estimation approchante des raccordements indispensables au projet. Concernant la maison que nous vous proposons, une surface de 130 m² et un garage de 25 m² qui vous permettront de bénéficier de tout le confort nécessaire. La zone jour traversante d’environ 52 m² vous offrira une profondeur qui laissera libre à cours à votre imagination quant à l’aménagement de cette dernière. Un cellier de plus de 11 m² fera la jonction entre le garage et la cuisine et apportera une zone de rangement complémentaire. Côté nuit, 3 chambres seraient prévues + une suite parentale constituée d’un dressing et d’une salle d’eau confortables en plus de la salle d’eau commune. Le système de chauffage vous est proposé en gainable avec chauffage et climatisation ajustables pièce par pièce. Carrelage dans la zone jour inclus, centralisation électrique pour l’ensemble des volets roulants. La construction de votre maison respectera la RE 2020 ce qui lui permettra de bénéficier entre autre, d’une domotique dernier cri ainsi que d’une faible consommation d’énergie. À noter que ce plan reste une proposition et demeure pleinement adaptable selon vos envies ! Le prix comprend : – Terrain + maison – garantie d’achèvement et de livraison à prix et délais convenus incluse – DO incluse – Frais de notaire inclus – raccordements inclus – Estimation taxes PFAC et aménagement incluses – visuel non contractuel – Non mandaté pour réaliser la vente du terrain – Selon disponibilité de notre partenaire foncier – Les informations sur les risques auxquels ce bien est exposé sont disponibles dur le site Géorisques https://www.georisques.gouv.fr / Il restera à votre charge les touches finales, à savoir les parquets dans les chambres, la peinture, la cuisine et le portail. Pour toute information complémentaire, n’hésitez pas à contacter Ludwig MOLL, Conseiller habitat Maisons d’en France à Castets. LM2-CASTETS.

Ravis du déroulement de la construction ainsi que la conductrice de travaux Madame Barbosa au top. Nous recommandons ce constructeur.
Amélie E. 16/10/2025