Découvrez aussi
nos annonces similaires
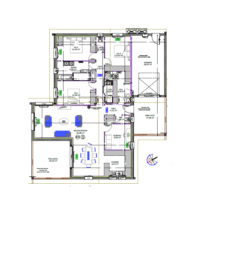
40560 Vielle-Saint-Girons
Maisons d’en France vous propose aujourd’hui un projet de construction au coeur du bourg de Vielle, ville idéalement située à moins de 10 minutes des plages, de 5 minutes de Léon et de son étang. L’aménagement de cette maison a été pensé pour concilier fonctionnalité et confort avec trois chambres et un bureau (transformable en chambre) aux surfaces généreuses. Une salle de bain commune comprenant douche à l’italienne, baignoire, placard de rangement et double vasque viendra compléter la partie nuit avec une seconde salle d’eau qui pourrait être accolée, selon vos envies, à la suite parentale. Côté jour, un salon-séjour-cuisine-entrée d’une surface dépassant les 60 m² offrira à votre espace de vie une belle luminosité par l’intermédiaire de ses trois baies vitrées dont une donnant sur la terrasse couverte. Un cellier de plus de 8 m² accessible depuis le garage et ouvrable sur le hall d’entrée viendra ajouter un espace de rangement complémentaire. Le système de chauffage vous est proposé en gainable avec climatisation. Carrelage et parquet dans les chambres inclus, centralisation électrique pour l’ensemble des volets roulants. La construction de votre maison respectera la RE 2020 ce qui lui permettra de bénéficier entre autre, d’une domotique dernier cri ainsi que d’une faible consommation d’énergie. Possible d’adapter les plans à vos envies, gain ou retrait de surfaces et / ou pièces (prix à adapter en fonction). Le prix comprend : – Terrain + maison – garantie d’achèvement et de livraison à prix et délais convenus incluse – DO incluse – Frais de notaire inclus – raccordements inclus – Taxes PFAC et aménagement incluses – visuel non contractuel – Non mandaté pour réaliser la vente du terrain – Selon disponibilité de notre partenaire foncier – Les informations sur les risques auxquels ce bien est exposé sont disponibles dur le site Géorisques https://www.georisques.gouv.fr / Il restera à votre charge les touches finales, à savoir les peintures, la cuisine, les clôtures et le portail. Pour toute information complémentaire, n’hésitez pas à contacter Ludwig MOLL, conseiller habitat Maisons d’en France. LM05-VSG.

Ns avons fait appel à MDF pr une construction à la location. Nos interlocuteurs, Stéphanie conseillère habitat a su s’adapter à nos exigences, et Julien, conducteur de travaux à été d’une efficacité redoutable pr ns livrer une maison en 8 mois. Ns recommandons vivement l’agence de Mt de Marsan pr vos futur projets.
Yves O. 06/02/2026