Découvrez aussi
nos annonces similaires
40560 Vielle-Saint-Girons
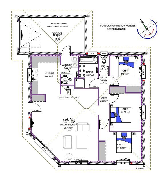
Sur la commune de Vielle Saint-Girons, à 5km de l’océan et de ses belles plages, à deux pas de l’étang de Léon, des commerces et services, Maison d’en France Sud-Ouest vous propose de construire cette maison neuve sur le terrain de 548 m² que nous vous y avons déniché. Laissez vous séduire par cette maison hyper optimisée de 92 m² habitables, répondant aux normes de la RE 2020. Confortable, fonctionnelle et lumineuse, cette future construction est composée d’une belle pièce de vie de 46 m² baignée de lumière grâce à ses larges baies vitrées, dont une en pan coupé. La cuisine semi ouverte permet un accès direct au cellier et au garage de près de 20 m². Un véritable de gage de fonctionnalité ! Côté nuit : trois chambres avec placards intégrés recevront aisément un couple et deux enfants. WC séparé, salle de bains équipée d’une double vasque, d’une baignoire et d’une spacieuse douche. Maison de vacances, investissement locatif ou résidence principale, ce nid douillet répondra à toutes vos attentes. Le système de chauffage suggéré vous assurera le plus grand confort dans le respect des nouvelles normes environnementales, tout en vous assurant de très substantielles économies, tant en chauffage qu’en rafraîchissement. Pas de plan type chez Maisons d’en France Sud-Ouest, tout est modifiable selon vos envies, votre budget, vos besoins. Ce projet vous est proposé « tout compris » hors peintures et cuisine. Terrain viabilisé de 548 m², selon disponibilité de notre partenaire foncier. Non mandaté pour la vente du terrain. Maison + terrain + frais de notaire + terrassement + raccordements à partir de 283 000 euros. Dommages-ouvrage et garanties de parfait achèvement et de livraison à prix et délais convenus incluses. Pour plus de renseignements, n’hésitez pas à joindre Katherine, votre conseillère Maisons d’en France Sud-Ouest, agence de Castets. Référence : KF-VSG-468.

Ravis du déroulement de la construction ainsi que la conductrice de travaux Madame Barbosa au top. Nous recommandons ce constructeur.
Amélie E. 16/10/2025